顺德民宅改造

图片来源网络地图
源起
1954年,酷爱武术的李小龙拜定居香港的叶问为师,研习咏春拳。祖籍顺德均安的李小龙那时并不知道与均安隔江而望的杏坛东马宁村是师公陈华顺的故乡。1900年,7岁的叶问拜陈华顺为师,研习咏春拳,那时,陈华顺已步入晚年,大半生在佛山生活的陈华顺在生命最后几年,回到了东马宁村。这个临西江边的小村落因为出了陈华顺,村里也一直有人学咏春拳,不过村里人更“认祖归宗”的称为“永春拳”,传统武术与方言一样,不练不说就渐渐消失了。东马宁村如今仍保留着顺德水乡特有的宁静,村落人净,少生人,老屋、祠堂、石路、鱼塘、让人感觉时光停驻。
在外人看来,这里是都市人寻找心灵平静的庇护所。老一辈出外谋生后鲜有回来定居,于是很多传统民居空置。去年,我们有幸接触了东马宁村的一个典型岭南民居的修复改造。
本案旨在探讨如何实现岭南民居的“再生”,唤醒那种平淡生活气息的居住记忆。
传统岭南民居的结构

项目概况
本案位于广东顺德杏坛镇
改造面积
占地面积110㎡,设计面积约220㎡。
建筑结构
砖木结构
空间功能
客厅、餐厅、厨房、客房、书房、茶室、卫生间等
传统岭南民居使用双层中空的青砖垒砌外墙,青砖质感细腻透气性极强,能起到很好的温度调节功能,本案除了局部墙面修复粉饰外,最大程度地保留了原有青砖墙体,墙体一米高段喷晒可渗透的透明纳米防水涂料。所有墙角处敷设踢脚线前都进行白蚁药喷晒(老宅年久修,缺乏维护,岭南地区多潮湿多虫蚁,前期的修复必须认真处理)。
建筑剖解图

岭南民居大多以砖木结构,墙体起承重作用,改造中会有移动门洞或扩大窗洞的需要,每个需改动的开口都需要再墙体中间开槽预埋暗嵌围合的钢铁支架,视觉上修旧保持原有韵味,结构加固。
地处西江边,水路纵横,潮湿的气候对木材构件侵蚀大。在门窗制品上我们用木纹转印铝板替换一些部件,木纹转印铝板外装饰效果与木质装饰板一致,又很好地解决了防火和防潮的问题,而且非常便于清洁。
在平面布局中我们改变了原有的入口方式,把入口大门正对着客厅大堂而开,玄关处设立的隔墙阻挡了直冲的对流,又保持的大堂室内的神秘感,隔墙顶部的磨砂玻璃窗让室内更加透亮。

客厅向入口角度

客厅向天井角度

右偏房增加门洞改造为餐厅,玄关进入餐厅,餐厅通往客厅或厨房,形成洄游的路线。

餐厅侧面外墙原有四个三十公分左右的十字漏窗,用以透风透气的,因为光线不足改造前显得局促昏暗。侧墙外面正好是一片菜地,风景绝佳,我们把原来的十字漏窗扩大置入方形钢架后装嵌条形窗。室内外的关系就灵动起来了。

在外墙窗外种植一排毛竹。改造后的餐厅焕然生机。斑驳的春日阳光透过窗外竹子洒落在室内,一派生机。

厨房做了有意思的尝试,老灶旁的空间我们定制了现代化的厨房柜体,洗切炒功能完备。原始的柴火灶被保修下来,加以修复,重新制作了烟囱。“灶君坐镇,衣食无忧”。当节庆聚会时还可以体验一把传统的柴火烧。

一楼偏房原本是老宅最阴暗潮湿的地方,右偏房墙外一片绿油油的菜地景观极好,扩大窗户改造餐厅后效果十分喜人。左偏房外墙是与邻屋相接只有一米不到的石板路,光线和通风效果都不理想。考虑房间的隔音,我们把原有的小十字漏窗封堵,床头整面墙批荡做了防水和抹灰处理,光线则扩大朝向内天井的窗洞来满足。

通过天井过滤的二次阳光来得更“蜿蜒温婉”。原有的窗台不但扩宽也往下打开铺设柚木板材后窗台高度刚好是书写高度,窗扇打开推至两侧,书写阅读品茶皆乐事。

改造后复古风格的现代卫浴空间

修复后的楼梯
现代吊灯在传统建筑中的使用

储物间改造的小茶室,可三五知己小聚,当有客人留宿时可以临时充当客房使用。

二楼过道既是走廊也是“书吧”,临窗享受阅读之乐,眺望欣赏远处风景。

原有卧室重新规划,缩小睡房面积划分出卫浴空间,满足现代人的使用功能。原来阳台和房间是一堵实墙相隔,空间不通透。靠近阳台的外墙开了门洞后,阳台与卧室相连接,在卧室之内也可以自由进出阳台。

主卧室将原来的小木窗扩大后改成铝合金窗,窗外的自然景观在窗框的衬托下犹如一幅活生生风景画。

二楼卧室的风格同样简约质朴局部的吊灯让空间光线更加柔和温馨。


岭南民居门手绘立面剖切图(图片来源《中式建筑测绘图集》)
岭南民居门手绘立面剖切图(图片来源《中式建筑测绘图集》)
岭南民居门及门套构造(图片来源《中式建筑测绘图集》)

原始民居布置图(图片来源《中式建筑测绘图集》)

原始民居布置图(图片来源《中式建筑测绘图集

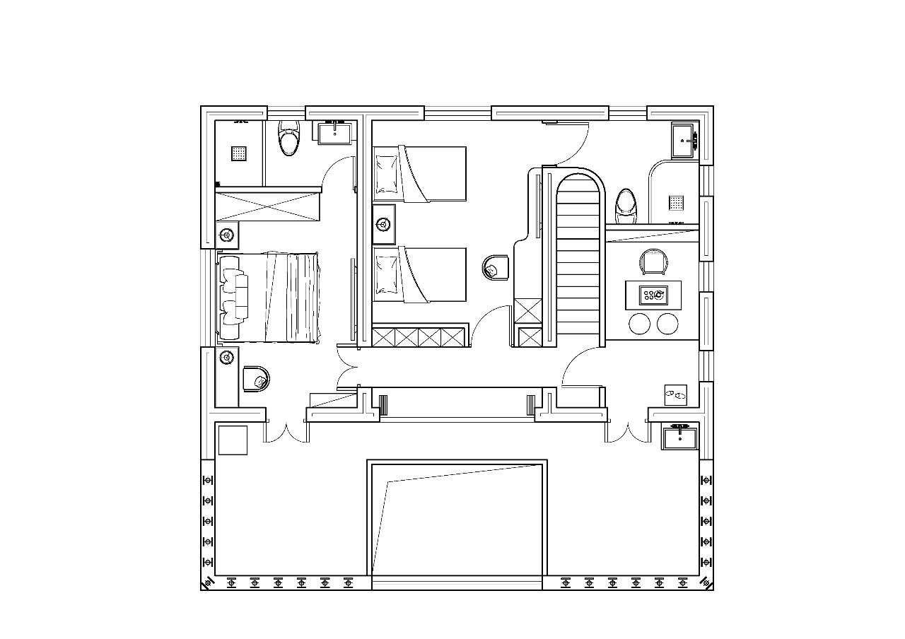
一层平面

二层平面
项目信息
项目名称:顺德民居
项目地点:佛山顺德
设计单位:良风设计事务所
建成状态:在建
设计时间:2020年
建筑面积:220平方米
-END-
*以上文章部分图片源自网络,如涉及侵权,请及时后台留言或邮件联系我们,我们将第一时间采取相关措施。独家发布,未经授权,严禁转载。